







Industrial Unit To Let Cannock
PROPERTY ID: 127268
PROPERTY TYPE
Industrial Unit
STATUS
Available
SIZE
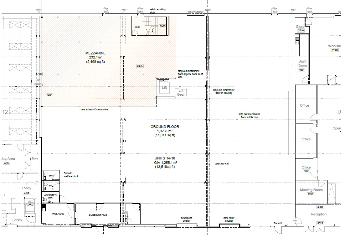
13,154 sq.ft
Key Features
Property Details
<p>New roof system, comprising of insulated composite cladding and twin skin rooflights to 10%<br />
Refurbished cladding and curtain walling to main front elevation, with the integration of two new insulated electrically operated loading doors<br />
Open plan unit with painted concrete floors fully redecorated perimeter walls and exposed structural steelwork<br />
Retained mezzanine floor to c.2,000 sq ft, consisting of chipboard floor finish (storage only mezzanine and none fire rated).  Mezzanine complete with perimeter handrails, stairs and good lift access (existing lift retained and serviced)<br />
New internal amenity block consisting of entrance foyer, welfare room and accessible washroom, complete with planted plaster wall and ceiling finishes, vinyl flooring and new LED lighting<br />
Main warehouse area with new energy efficient LED lighting throughout warehouse<br />
Rear loading by means of single roller shutter door (intended to be replaced)<br />
3 phase electricity supply. capped gas supply (off common parts system) and mains water</p>
<p>PC Rating Targeted to be C by end of refurbishment. Available Quarter 4, 2025.</p>